保護中: 【 i-works4.0 】平屋という選択に行き着いたi-works
-
i-works
NEW
平屋で完結する暮らしをかたちにしたプラン

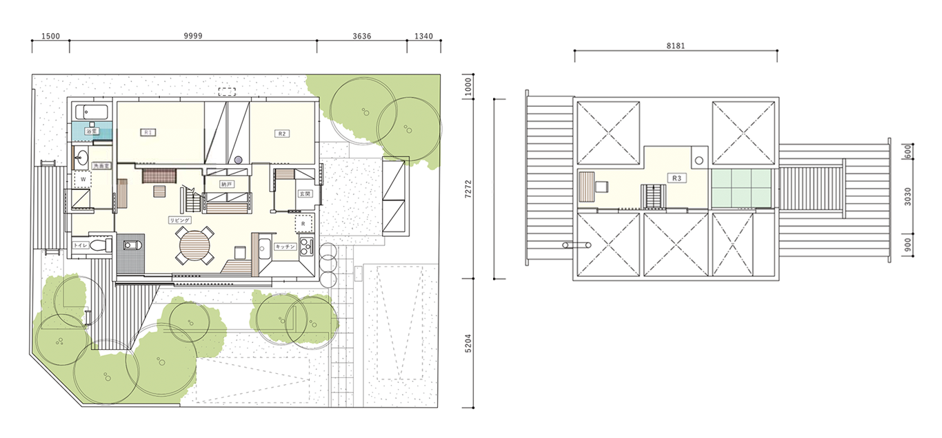
i-works4.0は、i-worksシリーズの中で唯一の平屋タイプです(確認申請上は2階建て)。
『終の棲家』をテーマにスタートしたプランで、1階のみで生活が完結する間取りとなっています。一方で、2階には予備室が設けられているため、子育て世代にも対応できる構成です。
どこか懐かしさを感じる温かな空間は、菅組スタッフの間でも人気のプランとなっています。

多様な暮らしに応える間取りバリエーション
1階には4つの基本プランがあり、さらに北側に下屋を設けた3プランを加え、合計7パターンの間取りが用意されています。
2階部分についても、住まい方に応じて多様な構成が考えられ、ライフスタイルに合わせた柔軟な使い方が可能です。




▼北側に下屋を設けた3プラン(E.F.G)



木の表情を感じる、奥行きのある室内空間
室内は4帖半が連なる空間構成で、大壁と真壁がバランスよくミックスされています。
大屋根部分の登り梁がそのまま見える設計となっており、i-worksシリーズの中でも 最も木視率の高い住まい です。木の存在感をしっかりと感じられる、奥行きのある空間が広がります。


※画像はすべてi-works project 公式サイトよりお借りしております。
イベントのご案内
3/28(土)・29(日)には i-works5.0 菅組モデル にてイベントを予定しております。
みなさまのご来場を心よりお待ちしております。


